Accommodation Establishment Engadin Samnaun Val Müstair

Ferienhaus Permez

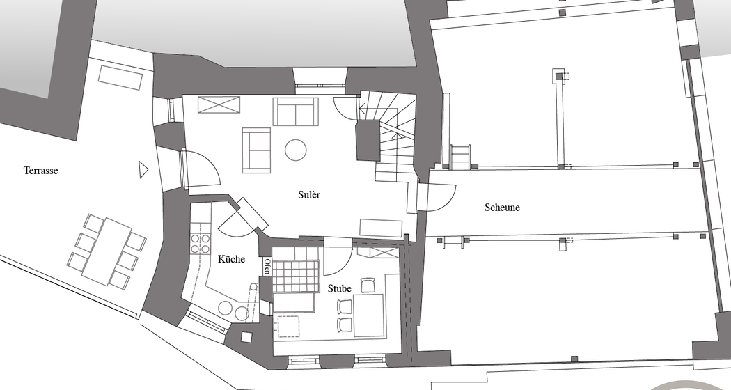
Ergeschoss
Engadinerhaus im Sommer

20 Bilder anzeigen

Engadinerhaus im Winter
The final cleaning is obligatory and costs 180,- SFR.

Beschreibung

Detached old Engadine house. Lovingly renovated, tiled stove in the living room. Very spacious, three floors, plenty of room for 6 people. Bookable from 5 nights.

Kontakt

Verantwortlich für diesen Inhalt Tourism Engadin Scuol Samnaun Val Müstair AG.